新着

新着 スコーレヒル 別荘

2LDK / 326.14m2

¥1,200,000,000

福岡県糸島市志摩野北 |  都市高速「天神北」車で約40分

  • スコーレヒル 別荘
  • スコーレヒル 別荘
  • スコーレヒル 別荘
  • スコーレヒル 別荘
  • スコーレヒル 別荘
  • スコーレヒル 別荘
  • スコーレヒル 別荘
  • スコーレヒル 別荘
  • スコーレヒル 別荘
  • スコーレヒル 別荘
  • スコーレヒル 別荘

スコーレヒル 別荘

2LDK / 326.14m2

¥1,200,000,000

福岡県糸島市志摩野北 |  都市高速「天神北」車で約40分

お問い合わせ

見学予約・お問い合わせは以下のフォームよりお問い合わせください。

24時間365日受付中!

基本情報

築年月
2023/07
向き
所在階
-
総戸数
1戸

POINT

◇玄界灘を一望できる絶景のロケーション◇
◆プライベート感を味わえる高級別荘地◆
◇高級家具「Minotti」でコーディネイト◇

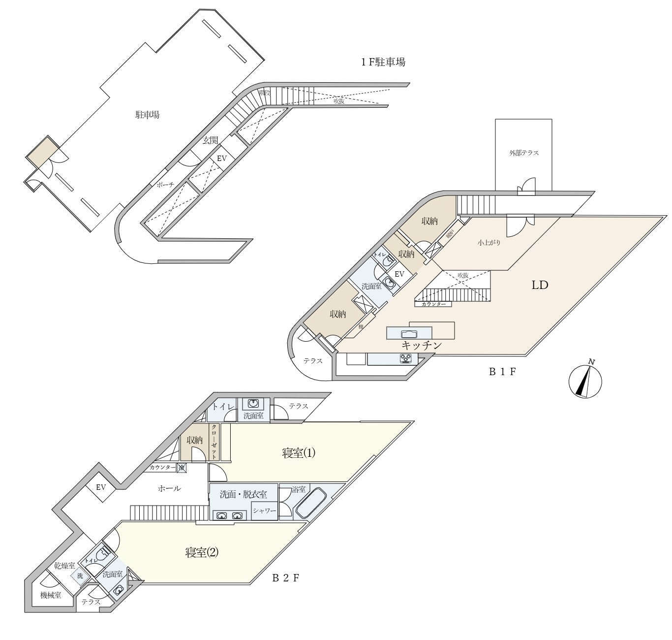
間取り

Floor plan image

特徴・共用施設

物件について

位置
-
部屋
-
キッチン
-
浴室
-
トイレ・洗面関連
-

建物について

施設・サービス
-
管理・セキュリティ
-

立地・周辺環境について

立地・環境
-

物件の概要・詳細

価格
¥1,200,000,000
位置
福岡県糸島市志摩野北
交通
都市高速「天神北」車で約40分
間取り
2LDK
専有面積
326.14m2
バルコニー面積
-
向き
その他面積
-
構造
鉄筋コンクリート・鉄骨造 地上1階地下2階付平屋建
所在階
-
築年月
2023/07
総戸数
1戸
土地権利
所有権のみ
用途地域
市街化調整区域
管理会社
-
管理形態
-
管理費
-
修繕積立金
-
その他使用料
-
駐車場
-
現況
空室
引渡
相談
取引態様
媒介
国土法届出
-
備考
-
更新日
2025-11-10
次回更新予定日
2025-11-17

人生で何度もない、大きな決断だから。
LUVIAは、憧れをもっと確かに、もっと身近に。

住まいは、人のこころを
どこまで広げることができるのか。
私たちは、そのちからを信じ、
踏み出そうとする、すべての人のために。
社会が望む、つぎのラグジュアリーを考え、
新たな憧れをつくっていきます。

Contact Contact Contact Contact

お問い合わせ 公式LINEはこちら

検索条件

エリア
販売価格
築年数
駅徒歩
間取り
専有面積
販売ステータス
取引態様

検索結果を見る